
| Number range: | EURL78600-EURL78617 in series Wagons - BR TOPS Private Owner | Previous | Next | |
| Quantity in batch: | 18 | In selection ?This works on your last-used batches selection, including any filters and sort orders. Buttons will not show if the current batch was not in your last selection, or if you are at the beginning or end of the data set. | ||
| Quantity in database: | 18 | Overall ?This works on the overall designs list without any filtering or sorting applied. | ||
| Origin: | New Build | |||
| Status: | Defunct | |||
| Built/Converted: | 1972 | |||
| At: | Fauvet-Girel (France) | |||
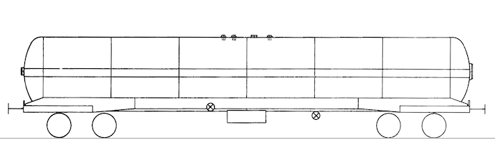
| Type: | 53.3t Bogie Anhydrous Ammonia Tank Wagon | |||
| Type group: | W (Wagon) | |||
| Lot: | ||||
| TOPS: | TCB-H | |||
| Design: | TC007A | |||
| Source: | Private Owner Wagons Vol.2, Metro, 1990 | |||
| Key Photo: | ||||
| Icon: |
|
|||
| Date ?The date of the listing. Newest listings are shown first. | Type ?Listings are either plain listings (reported details at a given date) or changes (changes of details on a given date). Hover over a code for the explanation. | Status ?The status of this number at (or after) the given date. Hover over a code for the explanation. | Prefix ?The prefix carried at the given date. Hover over a prefix for an explanation. | Number | TOPS | Design | Pool | Livery | Allocation | Location | Notes | ?Shows the approval status of each listing. Hover over an icon for an explanation. |
| 01/04/1990 | LListing (e.g. in an ABC) | AExtant, Registered, Active | EURLEurolease UK Ltd Click here for more details of this prefix |
78600 | TCA | TC007B | Approved, auto/admin |
|||||
| 01/04/1990 | LListing (e.g. in an ABC) | AExtant, Registered, Active | EURLEurolease UK Ltd Click here for more details of this prefix |
78601 | TCA | TC007B | Approved, auto/admin |
|||||
| 01/04/1990 | LListing (e.g. in an ABC) | AExtant, Registered, Active | EURLEurolease UK Ltd Click here for more details of this prefix |
78602 | TCA | TC007B | Approved, auto/admin |
|||||
| 01/04/1990 | LListing (e.g. in an ABC) | AExtant, Registered, Active | EURLEurolease UK Ltd Click here for more details of this prefix |
78603 | TCA | TC007B | Approved, auto/admin |
|||||
| 01/04/1990 | LListing (e.g. in an ABC) | AExtant, Registered, Active | EURLEurolease UK Ltd Click here for more details of this prefix |
78604 | TCA | TC007B | Approved, auto/admin |
|||||
| 01/04/1990 | LListing (e.g. in an ABC) | AExtant, Registered, Active | EURLEurolease UK Ltd Click here for more details of this prefix |
78605 | TCA | TC007B | Approved, auto/admin |
|||||
| 01/04/1990 | LListing (e.g. in an ABC) | AExtant, Registered, Active | EURLEurolease UK Ltd Click here for more details of this prefix |
78606 | TCA | TC007B | Approved, auto/admin |
|||||
| 01/04/1990 | LListing (e.g. in an ABC) | AExtant, Registered, Active | EURLEurolease UK Ltd Click here for more details of this prefix |
78607 | TCA | TC007B | Approved, auto/admin |
|||||
| 01/04/1990 | LListing (e.g. in an ABC) | AExtant, Registered, Active | EURLEurolease UK Ltd Click here for more details of this prefix |
78608 | TCA | TC007B | Approved, auto/admin |
|||||
| 01/04/1990 | LListing (e.g. in an ABC) | AExtant, Registered, Active | EURLEurolease UK Ltd Click here for more details of this prefix |
78609 | TCA | TC007B | Approved, auto/admin |
|||||
| 01/04/1990 | LListing (e.g. in an ABC) | AExtant, Registered, Active | EURLEurolease UK Ltd Click here for more details of this prefix |
78610 | TCA | TC007B | Approved, auto/admin |
|||||
| 01/04/1990 | LListing (e.g. in an ABC) | AExtant, Registered, Active | EURLEurolease UK Ltd Click here for more details of this prefix |
78611 | TCA | TC007B | Approved, auto/admin |
|||||
| 01/04/1990 | LListing (e.g. in an ABC) | AExtant, Registered, Active | EURLEurolease UK Ltd Click here for more details of this prefix |
78612 | TCA | TC007B | Approved, auto/admin |
|||||
| 01/04/1990 | LListing (e.g. in an ABC) | AExtant, Registered, Active | EURLEurolease UK Ltd Click here for more details of this prefix |
78613 | TCA | TC007B | Approved, auto/admin |
|||||
| 01/04/1990 | LListing (e.g. in an ABC) | AExtant, Registered, Active | EURLEurolease UK Ltd Click here for more details of this prefix |
78614 | TCA | TC007B | Approved, auto/admin |
|||||
| 01/04/1990 | LListing (e.g. in an ABC) | AExtant, Registered, Active | EURLEurolease UK Ltd Click here for more details of this prefix |
78615 | TCA | TC007B | Approved, auto/admin |
|||||
| 01/04/1990 | LListing (e.g. in an ABC) | AExtant, Registered, Active | EURLEurolease UK Ltd Click here for more details of this prefix |
78616 | TCA | TC007B | Approved, auto/admin |
|||||
| 01/04/1990 | LListing (e.g. in an ABC) | AExtant, Registered, Active | EURLEurolease UK Ltd Click here for more details of this prefix |
78617 | TCA | TC007B | Approved, auto/admin |
|||||
| 01/01/1990 | LListing (e.g. in an ABC) | AExtant, Registered, Active | EURLEurolease UK Ltd Click here for more details of this prefix |
78600 | TCA | TC007B | Approved, auto/admin |
|||||
| 01/01/1990 | LListing (e.g. in an ABC) | AExtant, Registered, Active | EURLEurolease UK Ltd Click here for more details of this prefix |
78601 | TCA | TC007B | Approved, auto/admin |
|||||
| 01/01/1990 | LListing (e.g. in an ABC) | AExtant, Registered, Active | EURLEurolease UK Ltd Click here for more details of this prefix |
78602 | TCA | TC007B | Approved, auto/admin |
|||||
| 01/01/1990 | LListing (e.g. in an ABC) | AExtant, Registered, Active | EURLEurolease UK Ltd Click here for more details of this prefix |
78603 | TCA | TC007B | Approved, auto/admin |
|||||
| 01/01/1990 | LListing (e.g. in an ABC) | AExtant, Registered, Active | EURLEurolease UK Ltd Click here for more details of this prefix |
78604 | TCA | TC007B | Approved, auto/admin |
|||||
| 01/01/1990 | LListing (e.g. in an ABC) | AExtant, Registered, Active | EURLEurolease UK Ltd Click here for more details of this prefix |
78605 | TCA | TC007B | Approved, auto/admin |
|||||
| 01/01/1990 | LListing (e.g. in an ABC) | AExtant, Registered, Active | EURLEurolease UK Ltd Click here for more details of this prefix |
78606 | TCA | TC007B | Approved, auto/admin |
|||||
| 01/01/1990 | LListing (e.g. in an ABC) | AExtant, Registered, Active | EURLEurolease UK Ltd Click here for more details of this prefix |
78607 | TCA | TC007B | Approved, auto/admin |
|||||
| 01/01/1990 | LListing (e.g. in an ABC) | AExtant, Registered, Active | EURLEurolease UK Ltd Click here for more details of this prefix |
78608 | TCA | TC007B | Approved, auto/admin |
|||||
| 01/01/1990 | LListing (e.g. in an ABC) | AExtant, Registered, Active | EURLEurolease UK Ltd Click here for more details of this prefix |
78609 | TCA | TC007B | Approved, auto/admin |
|||||
| 01/01/1990 | LListing (e.g. in an ABC) | AExtant, Registered, Active | EURLEurolease UK Ltd Click here for more details of this prefix |
78610 | TCA | TC007B | Approved, auto/admin |
|||||
| 01/01/1990 | LListing (e.g. in an ABC) | AExtant, Registered, Active | EURLEurolease UK Ltd Click here for more details of this prefix |
78611 | TCA | TC007B | Approved, auto/admin |
|||||
| 01/01/1990 | LListing (e.g. in an ABC) | AExtant, Registered, Active | EURLEurolease UK Ltd Click here for more details of this prefix |
78612 | TCA | TC007B | Approved, auto/admin |
|||||
| 01/01/1990 | LListing (e.g. in an ABC) | AExtant, Registered, Active | EURLEurolease UK Ltd Click here for more details of this prefix |
78613 | TCA | TC007B | Approved, auto/admin |
|||||
| 01/01/1990 | LListing (e.g. in an ABC) | AExtant, Registered, Active | EURLEurolease UK Ltd Click here for more details of this prefix |
78614 | TCA | TC007B | Approved, auto/admin |
|||||
| 01/01/1990 | LListing (e.g. in an ABC) | AExtant, Registered, Active | EURLEurolease UK Ltd Click here for more details of this prefix |
78615 | TCA | TC007B | Approved, auto/admin |
|||||
| 01/01/1990 | LListing (e.g. in an ABC) | AExtant, Registered, Active | EURLEurolease UK Ltd Click here for more details of this prefix |
78616 | TCA | TC007B | Approved, auto/admin |
|||||
| 01/01/1990 | LListing (e.g. in an ABC) | AExtant, Registered, Active | EURLEurolease UK Ltd Click here for more details of this prefix |
78617 | TCA | TC007B | Approved, auto/admin |
| Item added: | 12:00 on 01/01/2020 by Thomas Young |
| Approval status: | Approved, auto/admin |
| Item approved: | 12:00 on 01/01/2020 by Thomas Young |
| Time / Date | Edited by | Change |
| 22:07 on Tue 05/07/2022 | Thomas Young | Icon added |